1115 N Corinth Street, Corinth, TX

$2,250,000

Previous Next

2.14

Acres

About 1115 N Corinth Street

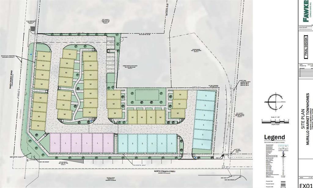
Fully approved, 50 unit townhome development for sale in Corinth, Texas. Project includes complete engineered drawings, architectural plans, geotech, topography survey, ALTA survey, full approvals and everything else that a developer will need to file for a building permit and start digging! Bids are also included in development packet along with proforma that shows projected developer profit. Price: $2,250,000 (land + plans) Acreage: 2.14 acre Units: 50 Individual unit mix: 32 units: 3 bed, 2.5 bath, 2 car garage (1499 sqft) 12 units: 4 bed, 3.5 bath, 2 car garage (2228 sqft) 6 units: live work units: 3 bed, 3 bath, 2 car garage (2174 sqft)

Features of 1115 N Corinth Street

MLS® # 21097768
Price $2,250,000
Bathrooms 0.00
Acres 2.14
Type Land
Sub-Type Unimproved Land
Status Active

Community Information

Address 1115 N Corinth Street
Subdivision None
City Corinth
County Denton
State TX
Zip Code 76208

Amenities

Utilities Other
Is Waterfront No
Has Pool No

Interior

Fireplace No

Exterior

Lot Description Subdivision

School Information

District Denton ISD
Elementary Alice Moore Alexander
Middle Bettye Myers
High Denton

Financial Information

HOA None

Additional Information

Zoning MXD

Listing Details

AgentJared English
OfficeCongress Realty, Inc.
Contact Info888-881-4118

Listing Map

Request a Showing

Provide a valid email address.
When would you like to view this property?