00000 W Freeway, White Settlement, TX

$650,000

Previous Next

About 00000 W Freeway

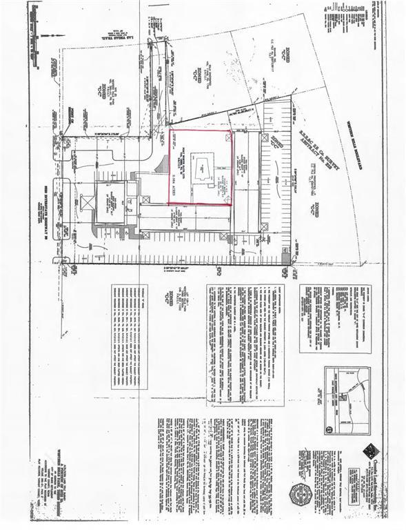
Unique opportunity to purchase a portion of land behind Red Roof Inn at 8520 West Freeway, White Settlement, TX 76108. Buyer will be responsible for obtaining a new survey, and re-platting. Great location for a retail center, office complex, medical or hospitality use, or an animal clinic (buyer to verify with City). Land sits just off Las Vegas Trail exit, behind new McDonald’s and KFC, with excellent visibility from I-30 and high daily traffic. The City of White Settlement is aware this land is for sale—buyers must consult with the city regarding proposed use and approval. Approximate boundaries outlined in red on photo; exact square footage to be confirmed by buyer. Rapid area growth, minutes to Downtown Fort Worth, JRB Naval Base, Parker County, and Loop 820. Not likely suitable for industrial use. Fantastic location for new development. Dream it, design it, build it!

Features of 00000 W Freeway

MLS® # 20958015
Price $650,000
Bathrooms 0.00
Acres 0.00
Type Land
Sub-Type Unimproved Land
Status Active

Community Information

Address 00000 W Freeway
Subdivision Western Hills
City White Settlement
County Tarrant
State TX
Zip Code 76108

Amenities

Utilities City Sewer, City Water
Is Waterfront No
Has Pool No

Interior

Fireplace No

Exterior

Lot Description Interior Lot

School Information

District White Settlement ISD
Elementary West
Middle Brewer
High Brewer

Financial Information

HOA None

Additional Information

Zoning Commercial

Listing Details

AgentTeresa Von Illyes
OfficeAmeriPlex Realty, Inc.

Listing Map

Request a Showing

Provide a valid email address.
When would you like to view this property?